新築一戸建住宅 分譲
「利回り」は、当該不動産の1年間の予定賃料収入の不動産取得対価に対する割合であり、公租公課その他当該物件を維持するために必要な費用の控除前のものです。
また、予定賃料収入が確実に得られる事を保証するものではありません。

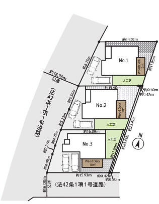
販売中 1号棟
|
情報公開日:2025年12月12日 / 次回更新予定日:2025年12月22日 |
|
| 価格 | 値下げ:2025/12/12 5,190 万円 |
|---|---|
| 間取り | 4LDK |
| 築年月 | 2025年 10月 |
| 階数 | 2階建 |
| 建物面積/坪数 | 109.09㎡/32.99坪 |
| 土地面積/坪数 | 187.79㎡/56.8坪 | 私道負担面積 |
| 土地の権利形態 | |
| 引渡し | 即時 |
| 取引態様 | 仲介 |
| 間取り詳細 |
LDK 20.7帖 1室 洋室 8.0帖 1室 洋室 5.2帖 2室 洋室 5.0帖 1室 |
仲介手数料無料 / バルコニー / システムキッチン / 対面式キッチン / 追焚機能浴室 / 浴室乾燥機 / 温水洗浄便座 / トイレ2ヶ所 / 浴室1坪以上 / 床下収納 / ウォークインシューズクロゼット / 食品庫 / 収納豊富 / TVモニタ付インターホン / ディンプルキー /
有 、 空き台数:2台
販売中 2号棟
|
情報公開日:2025年12月12日 / 次回更新予定日:2025年12月22日 |
|
| 価格 | 値下げ:2025/12/12 5,290 万円 |
|---|---|
| 間取り | 4LDK |
| 築年月 | 2025年 10月 |
| 階数 | 2階建 |
| 建物面積/坪数 | 109.09㎡/32.99坪 |
| 土地面積/坪数 | 186.22㎡/56.33坪 | 私道負担面積 |
| 土地の権利形態 | |
| 引渡し | 即時 |
| 取引態様 | 仲介 |
| 間取り詳細 |
LDK 20.7帖 1室 洋室 7.2帖 1室 洋室 5.2帖 2室 洋室 5.0帖 1室 |
仲介手数料無料 / バルコニー / システムキッチン / 対面式キッチン / 追焚機能浴室 / 浴室乾燥機 / 温水洗浄便座 / トイレ2ヶ所 / 浴室1坪以上 / ウォークインクロゼット / ウォークインシューズクロゼット / 食品庫 / 収納豊富 / TVモニタ付インターホン / ディンプルキー /
有 、 空き台数:2台
販売中 3号棟
|
情報公開日:2025年12月12日 / 次回更新予定日:2025年12月22日 |
|
| 価格 | 値下げ:2025/12/12 5,490 万円 |
|---|---|
| 間取り | 4LDK |
| 築年月 | 2025年 10月 |
| 階数 | 2階建 |
| 建物面積/坪数 | 111.58㎡/33.75坪 |
| 土地面積/坪数 | 176.21㎡/53.3坪 | 私道負担面積 |
| 土地の権利形態 | |
| 引渡し | 即時 |
| 取引態様 | 仲介 |
| 間取り詳細 |
LDK 20.0帖 1室 洋室 7.2帖 1室 洋室 5.2帖 3室 |
仲介手数料無料 / システムキッチン / 対面式キッチン / 追焚機能浴室 / 浴室乾燥機 / 温水洗浄便座 / トイレ2ヶ所 / 浴室1坪以上 / ウォークインクロゼット / ウォークインシューズクロゼット / 食品庫 / 収納豊富 / TVモニタ付インターホン / ディンプルキー /
有 、 空き台数:2台
仲介手数料無料(0円)+ご成約特典として商品券プレゼント中の
LIXIL不動産ショップ八王子住まいる不動産にお任せください!

※地図上の物件位置は近隣に物件が所在することを表すものであり、実際の物件所在地とは異なる場合がございます。
042-649-3547
営業時間:9:00~19:00 / 定休日:水曜日
| 所在地 | 東京都八王子市めじろ台3丁目 | ||
|---|---|---|---|
| 交通 |
京王高尾線 「めじろ台」駅
徒歩11分 京王高尾線 「狭間」駅 徒歩15分 中央線 「高尾」駅 徒歩31分 |
||
| 価格 | 5,190万円 ~ 5,490万円 | 間取り | 4LDK |
| 総戸数 | 販売戸数 | ||
| 建物構造 | 木造 | ||
| 建ぺい率/容積率 | 40%/ 80% | 土地権利 | 所有権 |
| 地目 | 宅地 | 地勢 | |
| 土地の権利形態 | |||
| 都市計画 | 市街化区域 | 用途地域 | 第一種低層住居専用地域 |
| その他法令上の制限 | |||
| 国土法届出 | 不要 | ||
| 設備条件 | 公共下水 / 公営水道 / 都市ガス | ||
| 備考 | |||
| 周辺の学校 | 八王子市立椚田小学校(約693m / 徒歩9分)、八王子市立椚田中学校(約1,303m / 徒歩17分) | ||
| 建築確認番号 | 第KBI-SGM25-10-1686号他 | 物件番号 | 96583906 |
| 取扱い会社 |
株式会社八王子住まいる不動産 〒192-0046 東京都八王子市明神町2丁目21-13錦せいビル 101 東京都知事(1)第108239号 全日本不動産保証協会 |
||
042-649-3547
営業時間:9:00~19:00 / 定休日:水曜日
| 所在地 | 物件の住所を表示。(詳細住所は表示していない場合もある) | ||
|---|---|---|---|
| 交通 | 物件(部屋)の沿線駅・バス停を表示。(複数駅・バス停の利用が可能な場合は最大3件まで) | ||
| 間取り/詳細 | 数字は居室数を表示。LDKはそれぞれ「リビング」「ダイニング」「キッチン」、S(納戸)とは「納戸」「サービスルーム」「マルチルーム」「フリールーム」など建築基準法第28条に適合していないため、居室と認められない納戸その他の部分を表す。 | ||
| 価格 | 販売されている住戸の価格を表示。仲介手数料は含まない。 | ||
| 管理費 | 共同住宅の設備その他共用部分の維持および管理をするために必要な費用を表示。 | ||
| 修繕積立金 | 共用部分の修繕のために積立てる金額を表示。 | ||

新築一戸建住宅
| 価格 |
値下げ:2025/12/12 4,799 万円 | ||
|---|---|---|---|
| 間取り | 4LDK | 築年月(築年数) | 2025年 9月 (新築) |
| 建物面積 | 109.03㎡ | 土地面積 | 215.35㎡ |
| 住所 | 東京都八王子市北野台2丁目26-12 | ||
| 交通 |
京王線「北野」駅 徒歩30分 横浜線「片倉」駅 京王線「長沼」駅 |
||
新築一戸建住宅
| 価格 |
値下げ:2025/11/28 5,799 万円 | ||
|---|---|---|---|
| 間取り | 4LDK | 築年月(築年数) | 2025年 9月 (新築) |
| 建物面積 | 108.47㎡ | 土地面積 | 249.97㎡ |
| 住所 | 東京都八王子市めじろ台1丁目41-2 | ||
| 交通 |
京王高尾線「めじろ台」駅 徒歩7分 中央線「西八王子」駅 徒歩23分 京王高尾線「狭間」駅 徒歩23分 |
||
新築一戸建住宅
| 価格 | 4,499 万円 ~ 4,899 万円 | ||
|---|---|---|---|
| 間取り | 4LDK | 築年月(築年数) | 2025年 10月 (新築) |
| 建物面積 | 108.06㎡ ~ 108.88㎡ | 土地面積 | 108.87㎡ ~ 118.27㎡ |
| 住所 | 東京都八王子市椚田町1212-15 | ||
| 交通 |
京王高尾線「狭間」駅 徒歩8分 京王高尾線「めじろ台」駅 徒歩21分 中央線「高尾」駅 徒歩26分 |
||
新築一戸建住宅
| 価格 |
値下げ:2025/11/21 5,299 万円 | ||
|---|---|---|---|
| 間取り | 4LDK | 築年月(築年数) | 2025年 10月 (新築) |
| 建物面積 | 108.47㎡ | 土地面積 | 140.61㎡ |
| 住所 | 東京都八王子市長沼町1202-88 | ||
| 交通 |
京王線「北野」駅 徒歩6分 京王線「長沼」駅 徒歩9分 横浜線「片倉」駅 徒歩25分 |
||
新築一戸建住宅
| 価格 | 5,149 万円 | ||
|---|---|---|---|
| 間取り | 4LDK | 築年月(築年数) | 2025年 10月 (建築中) |
| 建物面積 | 104.98㎡ ~ 111.79㎡ | 土地面積 | 147.28㎡ ~ 148.41㎡ |
| 住所 | 東京都八王子市元本郷町3丁目28-6 | ||
| 交通 |
中央線「西八王子」駅 徒歩18分 中央線「八王子」駅 京王線「京王八王子」駅 |
||
【外観】1号棟外観