新築一戸建住宅
「利回り」は、当該不動産の1年間の予定賃料収入の不動産取得対価に対する割合であり、公租公課その他当該物件を維持するために必要な費用の控除前のものです。
また、予定賃料収入が確実に得られる事を保証するものではありません。

洗濯物を浴室内で乾かせる浴室乾燥機が用意されている物件です。令和7年9月築の物件で、多くのお問い合わせをいただいております。トイレが2ヶ所にあるので複数人でも快適に暮らせます。町田市で戸建て探しをされるなら、狙い目は成瀬周辺です。生活環境に関する事も、LIXIL不動産ショップ八王子住まいる不動産が詳しくお教えいたします。お気軽に当社へご依頼下さい。

※地図上の物件位置は近隣に物件が所在することを表すものであり、実際の物件所在地とは異なる場合がございます。
042-649-3547
営業時間:9:00~19:00 / 定休日:水曜日
| 所在地 | 東京都町田市成瀬2丁目 | ||
|---|---|---|---|
| 交通 |
横浜線 「成瀬」駅
徒歩20分 東急こどもの国線 「恩田」駅 徒歩27分 |
||
| 価格 | 4,850万円 | ||
| 間取り |
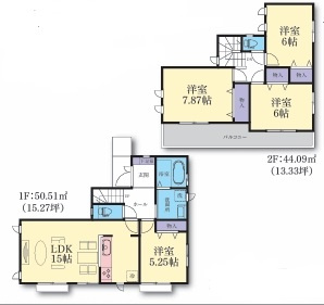
4LDK
|
||
| 築年月(築年数) | 2025年 9月(新築) | 主要採光面 | |
| 建物構造 | 木造 | 階数 | 2階建 |
| 私道負担面積 | セットバック | ||
| 接道状況 | |||
| 建ぺい率/容積率 | 50%/ 100% | 土地権利 | 所有権 |
| 地目 | 地勢 | 平坦 | |
| 土地の権利形態 | |||
| 都市計画 | 市街化区域 | 用途地域 | 第一種低層住居専用地域 |
| その他法令上の制限 | 高度地区/敷地面積最低限度有 | ||
| 国土法届出 | 不要 | 取引態様 | 仲介 |
| 現況 | 完成済み | 引渡し | 即時 |
| 駐車場 | 空き台数:1台 、 有 | ||
| 設備条件 | 公共下水 / 公営水道 / 閑静な住宅地 / 都市ガス / 陽当り良好 / 室内洗濯機置場 / 24時間換気システム / 照明器具付き / 駐輪場 / ガスコンロ / コンロ2口以上 / 食器洗い乾燥機 / システムキッチン / 対面式キッチン / コンロ3口 / 追焚機能浴室 / 浴室乾燥機 / 温水洗浄便座 / トイレ2ヶ所 | ||
| その他条件 | |||
| 備考 | 平坦地なので周辺に坂道がなく買いものや通勤での負担が少ない立地です。動線を意識したデザインのシステムキッチン付きで作業能率が上がります。家族皆で暮らすなら広々とした4LDKの物件。新築の物件を検討中の方はぜひ一度こちらの物件をご覧ください。成瀬近くの地域情報を知り尽くしたLIXIL不動産ショップ八王子住まいる不動産のスタッフが、お客様の不動産探しをサポート致します。 | ||
| 周辺の学校 | |||
| 建築確認番号 | 物件番号 | 101793005 | |
| 情報公開日 | 2026年3月9日 | 次回更新予定日 | 2026年3月23日 |
| 取引条件の有効期限 | 2026年3月23日 | ||
| 取扱い会社 |
株式会社八王子住まいる不動産 〒192-0046 東京都八王子市明神町2丁目21-13錦せいビル 101 東京都知事(1)第108239号 全日本不動産保証協会 |
||
042-649-3547
営業時間:9:00~19:00 / 定休日:水曜日
| 所在地 | 物件の住所を表示。(詳細住所は表示していない場合もある) | ||
|---|---|---|---|
| 交通 | 物件(部屋)の沿線駅・バス停を表示。(複数駅・バス停の利用が可能な場合は最大3件まで) | ||
| 間取り/詳細 | 数字は居室数を表示。LDKはそれぞれ「リビング」「ダイニング」「キッチン」、S(納戸)とは「納戸」「サービスルーム」「マルチルーム」「フリールーム」など建築基準法第28条に適合していないため、居室と認められない納戸その他の部分を表す。 | ||
| 価格 | 販売されている住戸の価格を表示。仲介手数料は含まない。 | ||
| 管理費 | 共同住宅の設備その他共用部分の維持および管理をするために必要な費用を表示。 | ||
| 修繕積立金 | 共用部分の修繕のために積立てる金額を表示。 | ||

【外観】南向きの明るい外観が印象的な一戸建て。敷地にゆとりがあり、駐車スペースも確保。周辺の街並みに調和しな